Actualités pour mes presques 3 bougies !!!

En ce début de saison automnale et à presque trois ans d’existence, Céline Création Maison propose des projets divers comme des variations de teintes, de couleurs et de formes, voici donc quelques actualités à découvrir

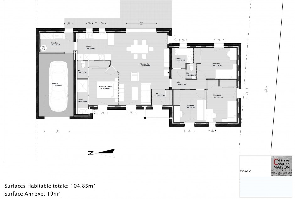
Construction d'une maison individuelle Construction d'une maison individuelle

1.1  Plan du projet _ Mise en p 01.3 Images du Projet _ Mise en 01.3 Images du Projet _ Mise en

01.2 Vues Couleurs _ Mise en pa Projet  maison Individuelle Plain-Pied Projet  maison Individuelle Plain-Pied Projet  maison Individuelle Plain-Pied

panneau-du-ptojet-avec-image-celine-creation-maison

insertion-septembre-2016 MINOLTA DIGITAL CAMERA MINOLTA DIGITAL CAMERA

 

00

Laissez moi un petit commentaire sur mes réalisations

Votre adresse de messagerie ne sera pas publiée. Les champs obligatoires sont indiqués avec *

Vous pouvez utiliser ces balises et attributs HTML : <a href="" title=""> <abbr title=""> <acronym title=""> <b> <blockquote cite=""> <cite> <code> <del datetime=""> <em> <i> <q cite=""> <strike> <strong>

Plan du site
Construire sa première maison
Agrandir son habitation
Rénover une maison ancienne

Installer son entreprise
Rubrique dédiée aux professionnels
Liens
Lexique
Qu'est-ce qu'un permis de construire ?
C'est quoi un PLU ?
La mairie me demande un APS, c'est quoi ?
Contact
Qui suis-je ?
Contact
Votre devis