Le permis de Construire:
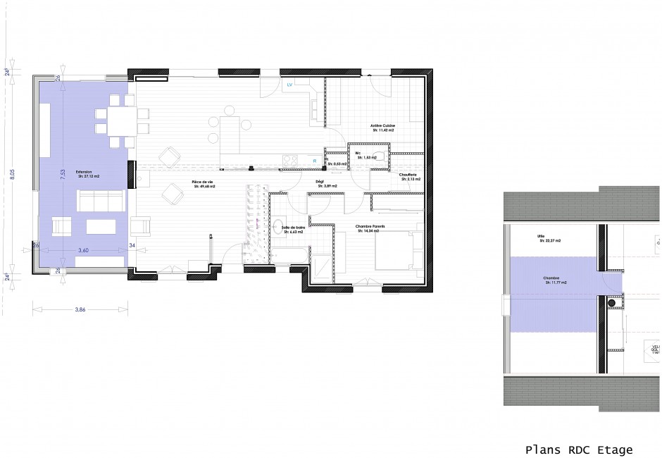
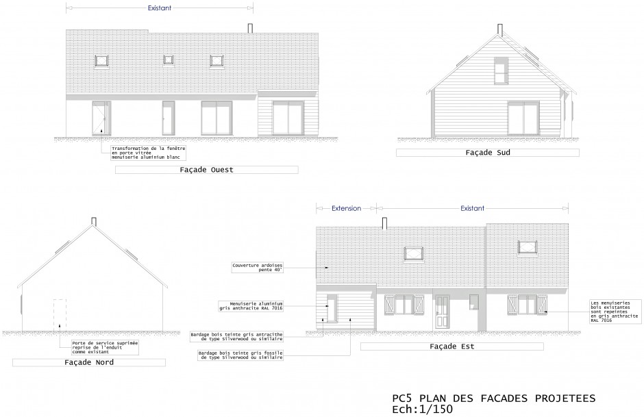
Le projet déposé est différent de l’initial, de l’épisode 2. En effet, avec la réglementation thermique qui doit accompagner les projets neufs depuis Janvier 2012, soit les maisons individuelles, soit les extensions neuves dans la limite de 30% de la surface existante. Notre projet d’agrandissement dépassait le seuil des 30%. Après consultation d’un thermicien, il s’est avéré que la gestion de la toiture terrasse avec la toiture traditionnelle allait être compliquée, un problème de pont thermique …En plus de cela un surcout non négligeable sur la totalité de l’extension pour l’isolation des murs, les tests à l’étanchéité à l’air… Avec les clients nous avons donc décidé de diminuer l’extension de manière à être en dessous du seuil, sans dénaturer le projet et pouvoir garder du budget pour la décoration intérieure, paysager le terrain.
Voici donc des éléments du permis qui a été accepté sans soucis et des photos du chantier qui a démarré!!!
La prochaine étape pour ce projet en continu ce sera un superbe Portfolio








Un commentaire sur "Un projet en continu, épisode 3…"
Très beau projet, j’aime beaucoup la couleur du bardage de l’extension, ça se marie bien avec l’existant.
L’idée du salon extérieur avec le mur ouvert et l’ouverture en rond ça a l’air vraiment pas mal.
Vivement qu’on puisse voir les photos du projet terminé !